Clerestory Laneway House

Owner-Built, Light-Filled Laneway House

Location:

Type:

Size:

Levels:

Rooms:

Status:

Vancouver

Laneway House

1500 sf

2

2 Bedrooms 1 Bathroom

Under Construction

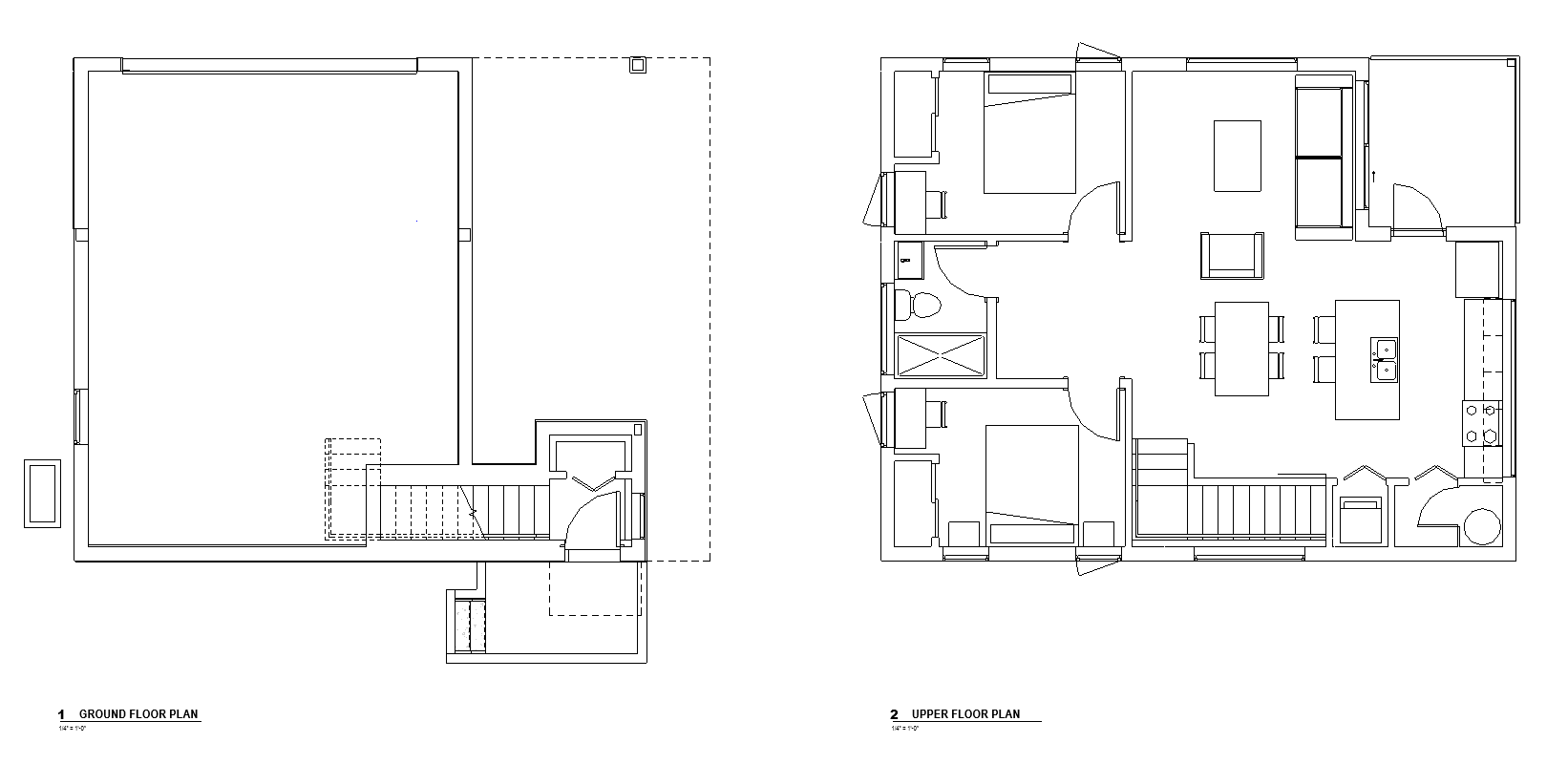
Designed for Living

As an owner-builder project, the laneway house was designed to be lived in. The design evolved through multiple iterations, studying massing, views, daylight, and layout, with careful consideration given to sightlines and minimizing visual impact on the main house.

Privacy by Elevation

Raising the living space above the garage naturally separates daily life from the lane below. Bedrooms and main living areas enjoy quiet and seclusion, while large windows still capture light and views without compromising privacy.

Unique Daylighting

By staggering two pitched rooflines, clerestory windows pull soft northern light deep into the plan. The light animates the kitchen and living area throughout the day without glare or overheating. The elevated ceiling height creates a sense of generosity where square footage is tight, proving that volume often matters more than area.

Efficient and Spacious

Two bedrooms, one bath, and an open living plan are arranged to minimize wasted circulation. The plan prioritizes sightlines, ceiling height, and daylight over excess rooms, resulting in a home that feels calm and spacious despite its compact footprint.

Elevated Indoor-Outdoor

The covered corner balcony expands the living space outward, offering shelter from rain while maintaining light and openness. Positioned off the main living area, it functions as an outdoor room

Previous
Previous

Green House Child Care

Next
Next

Modular Multiplex